Tutti gli uffici del Palazzo municipale di Paceco saranno finalmente accessibili anche alle persone con difficoltà motorie: entro la fine di questo mese, inizieranno diversi interventi edili che consentiranno anche una sistemazione più funzionale degli spazi interni.
Lo anticipa l’Amministrazione Grammatico, comunicando che è stato aggiudicato l’appalto dei “lavori di abbattimento delle barriere architettoniche all'interno del palazzo municipale”. Il responsabile unico del procedimento, il geometra Gaspare Cernigliaro del V Settore del Comune, ha determinato l’affidamento diretto all’impresa “Fi.Geo. Costruzioni” Srl di Casa Santa Erice, che nella piattaforma telematica Tuttogare ha negoziato un ribasso del 10% sull'importo dei lavori di 97.921,32 euro, per un totale di circa 150 mila euro con i costi della manodopera e gli oneri per l’attuazione dei piani di sicurezza.
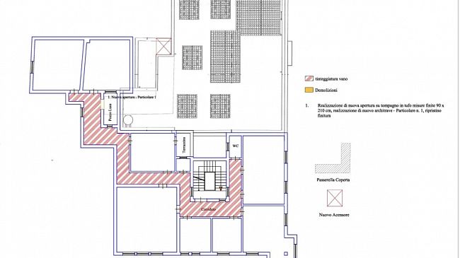
«All'atto del nostro insediamento – sottolinea il sindaco Aldo Grammatico – ci siamo posti l’obiettivo di rendere la Casa Comunale un luogo accessibile a tutti, senza alcuna esclusione, e abbiamo dato indirizzo all'ufficio Lavori Pubblici di predisporre tutti gli atti per la progettazione esecutiva e la realizzazione dei lavori necessari».«Le opere saranno realizzate impiegando i fondi assegnati dal Ministero dell’Interno al Comune di Paceco, per l’abbattimento delle barriere architettoniche negli edifici comunali» precisa l’assessore ai Lavori Pubblici, Salvatore Castelli, e ricorda che «il Palazzo Municipale di Paceco, costruito circa cinquant'anni fa, presenta innumerevoli criticità nella distribuzione degli spazi interni e tante barriere architettoniche rendono molti uffici comunali irraggiungibili dagli utenti con difficoltà motorie».L’assessore Castelli illustra quindi gli interventi previsti:1. diretto collegamento del Palazzo Municipale con l’edificio retrostante a due elevazioni (sede del Gabinetto del Sindaco, dell’aula Giunta, Segretario comunale, Protocollo ed alcuni uffici destinati al pubblico) tramite l’apertura di un varco a pianoterra.
La realizzazione del varco di collegamento tra i due edifici consentirà di servire tutto il pianoterra, ove insiste anche l’Aula Consiliare, con un servizio igienico per disabili presente nell'edificio retrostante al Palazzo Municipale;2. realizzazione di uno scivolo nell'ingresso principale del Palazzo Municipale, per favorire l’accesso ai disabili; il varco di collegamento tra i due edifici attigui consentirà l’accesso diretto agli ascensori già esistenti;3. modifica del vano corsa degli attuali ascensori, al fine di servire anche il secondo piano del Palazzo Municipale, attualmente sprovvisto;4. riorganizzazione del pianoterra del Palazzo Municipale con una portineria unica nell'ingresso principale.
NOTA STAMPA
 
             
     
					 
					