Erice, oltre 11 milioni di euro per realizzare il nuovo campus universitario

Redazione Prima Pagina Trapani
Redazione Prima Pagina Trapani
24 Dicembre 2020 19:30
Erice, oltre 11 milioni di euro per realizzare il nuovo campus universitario

Arriva la deroga (D.D.G.179/DRU 16/11/2020), da parte dell’Assessorato Regionale Territorio e Ambiente – Dipartimento dell’Urbanistica, per la realizzazione degli alloggi per gli studenti che frequentano i corsi del Polo universitario di Trapani. L’assessorato, infatti, ha espresso parere favorevole alla concessione della stessa.

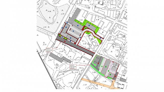
Nel dettaglio, l’area oggetto di deroga (quartiere San Giuliano) ricade all’interno del Comparto 2 “Servizi per l’Università” dell’intervento 5.1.1 “La Piazza del Mare e l’asse attrezzato di via Teocrito” della variante urbanistica per la Zona Franca Urbana di Erice.

La proposta progettuale, per quanto riguarda il lotto A, prevede in deroga la realizzazione di:

  • 56 alloggi di edilizia a canone sostenibile per studenti (social housing)
  • Locali destinati a servizi universitari (mensa e bar)
  • Locali commerciali
  • Palestra.

Per ciò che concerne invece il lotto B si prevede la realizzazione di:

  • 22 alloggi di edilizia libera
  • Locali commerciali
  • Integrazione della nuova viabilità di PRG e relative opere di infrastruttura primaria
  • Nuove aree di parcheggio pubblico
  • Nuove aree a verde privato e pubblico.

L’importo complessivo per realizzazione delle opere è di circa 11.500.000 euro, di cui 4 a carico del finanziamento a cui il Comune di Erice è stato ammesso con D.D.G. n. 95 n.151 del 31/01/2011, e la rimanente parte di circa 7,5 milioni a carico di privati, a suo tempo individuati attraverso un avviso pubblico.

«Si tratta di un altro piccolo tassello del puzzle di rigenerazione urbana nel territorio di San Giuliano – commenta il vice sindaco, Gianni Mauro -. L'impresa a suo tempo individuata con avviso pubblico sta lavorando per presentare il progetto esecutivo entro il mese di marzo 2021».

«Accolgo con grande piacere questa notizia – aggiunge la sindaca, Daniela Toscano -. La realizzazione degli interventi in oggetto va di pari passo con l’attivazione di 2 nuovi corsi di laurea (2021/2022) che l’Università degli Studi di Palermo ha destinato al Polo di Trapani *. Sono percorsi universitari coerenti col territorio che vanno nella direzione di un rilancio strategico dello stesso e la cui importanza era stata più volte proposta e sottolineata con evidenza dalla nostra Amministrazione comunale».

*N.B. si tratta di Infermieristica e Ingegneria delle tecnologie del mare, mentre rimangono attivi i corsi in Giurisprudenza, Consulente Giuridico d’impresa, Scienze del turismo e Viticoltura ed Enologia (quest’ultimo si tiene a Marsala). - comunicato stampa

Ti piacciono i nostri articoli?

Non perderti le notizie più importanti. Ricevi una mail alle 19.00 con tutte le notizie del giorno iscrivendoti alla nostra rassegna via email.

In evidenza